荒川整形外科リハビリテーションクリニック | STREAM.inc
荒川整形外科リハビリテーションクリニック customer interview

地域の皆様に頼られるクリニックを

荒川整形外科リハビリテーションクリニック

東京都荒川区荒川1-17-14

https://arakawa-seikei.com
院長 長谷川 健司 様

BEYOND CLINIC DESIGN

draw
01
質問

「まずは、クリニックを開院されるにあたって、どんな課題や不安を感じてい らっしゃいましたか?」

回答

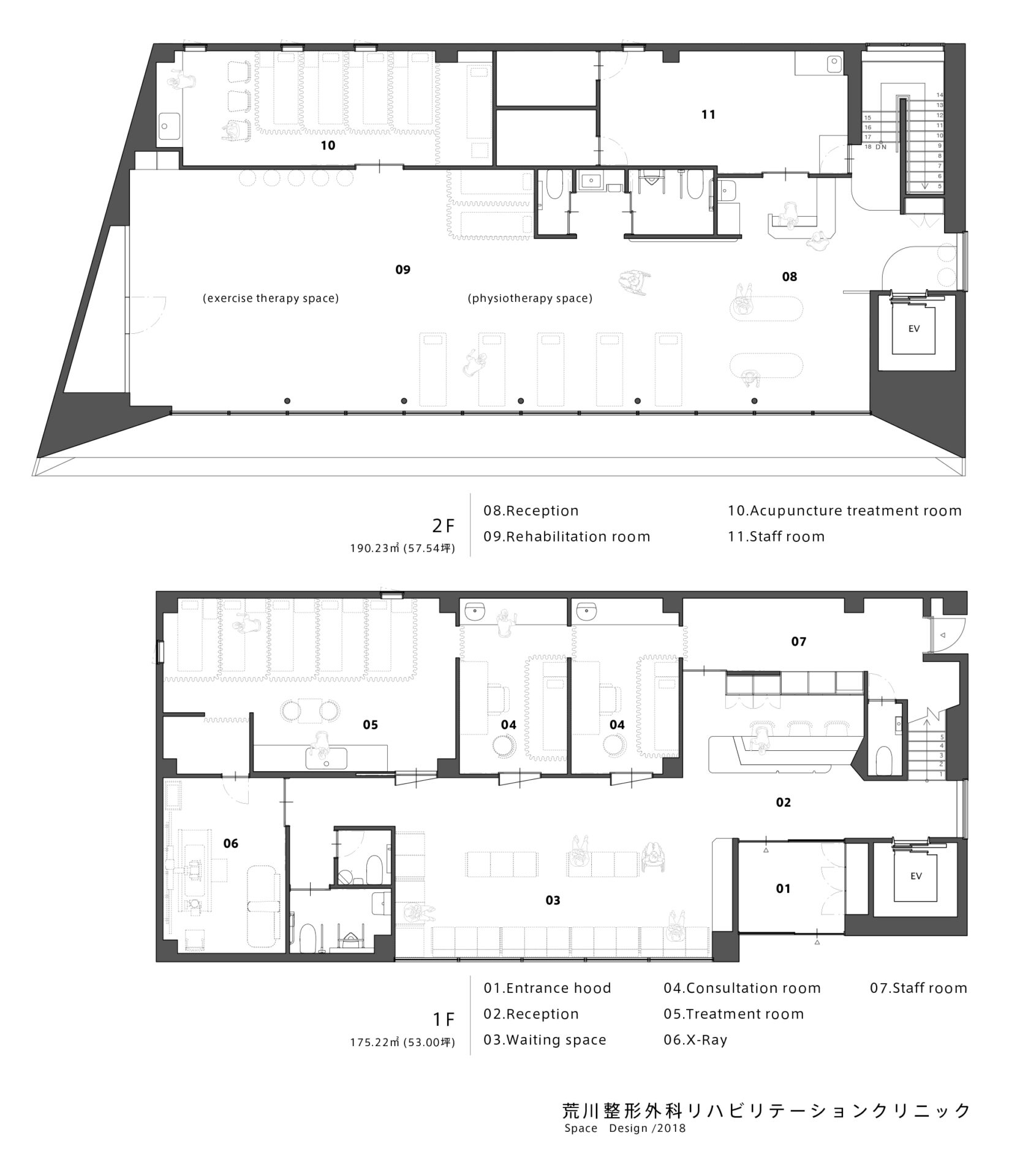
リハビリ室を2 階に設けることで街並みからリハビリ風景が見えるような設計と1 階の診察室との患者導線がどうなるかが不安でした。

02
質問

「その中で、なぜ私たちの設計事務所に依頼いただいたのでしょうか?」

回答

過去の実績から感じたことは、医療機関として大切な信頼感と清潔感を持ち合わせ、先進的なデザインでありながら使い勝手が良さそうな設計が依頼させていただいた一番の理由です。

単なる医院設計ではなく「医療とサービスをつなぐ空間」をつくってくれるパートナーだと感じました。

03
質問

「設計やデザインのプロセスで、印象に残っていることはありますか?」

回答

院長だけでなくスタッフまでも丁寧にヒアリングをして頂き、デザイン優先でなく費用や実際の使い勝手もアドバイスを受けながら設計を進めていただきました。言葉にならないニュアンスまで、空間のデザインに反映していただけた点が印象的です。

04
質問

「費用面の心配はありましたか? 進めてみていかがでしたか?」

回答

先進的なデザインであることが費用を押し上げるのではと心配していましたが、材料の見直しや水回りを既製品で代用していただき、最初のコンセプトを変えずに予算内で済ませることが出来ました。

05
質問

「実際に完成したクリニックをご覧になって、最初の印象はいかがでしたか? また患者さんやスタッフさんの反応はいかがでしょうか?」

回答

スタッフや患者様にも胸を張って使っていただける医療施設だと感じたことは今でも覚えています。院長としての自負とやりがいを感じました。

患者さんは多少の待ち時間は不満なく我慢していただけているようで、待合室の居心地が良いことが理由だと思っています。

06
質問

「振り返って、もっと工夫できたと思う点はありますか?」

回答

外看板などはもう少し予算を取っても広告効果を狙っても良かったかも知れませんが、建物そのものが印象的で今となっては看板の役割をしているようです。

07
質問

「日常の診療や運営の中で、この空間をつくって良かったと感じるのは どんな時ですか?」

回答

一般的に医療機関では掲示物が雑然となりがちですが、待合室の掲示スペースを壁一面に広く設けたことで一貫性を持たせることで出来ました。
言葉にならないニュアンスまで、空間のデザインに反映していただけた点が印象的です。

クリニックは当初のPT8 人から15 人へ増え2F のソファも早々に撤去し治療用ベッドで満杯になっております。
今後ともよろしくお願いいたします。