HANSHIN BIRTH CLINIC | STREAM.inc
HANSHIN BIRTH CLINIC customer interview

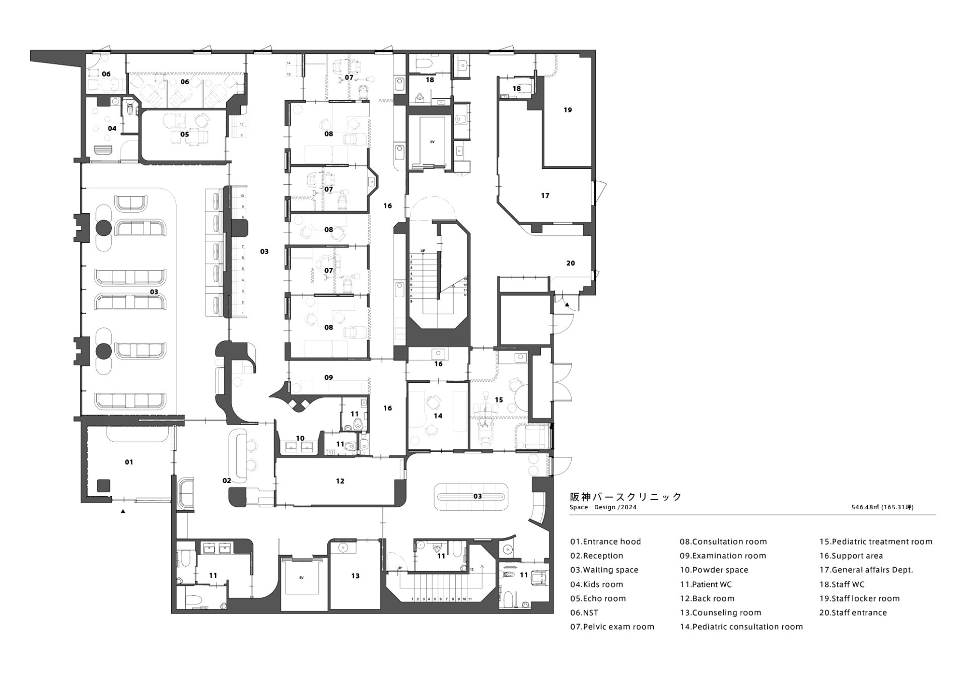
お母さまと赤ちゃんに優しい分娩を

HANSHIN BIRTH CLINIC

兵庫県尼崎市小中島2丁目20-16

https://hbcl.jp/
理事長 神田 宏治 様

BEYOND CLINIC DESIGN

draw
01
質問

「まずは、クリニックを開院されるにあたって、どんな課題や不安を感じていらっしゃいましたか?」

回答

漠然とした希望はありましたが、自分の発想の枠内でまとめてしまって本当にいいのか、もっと上を行く提案をしてくれるプロに出会えるのかが一番の不安でした。情報は多いのに、どの基準で選べばよいかがわからず迷っていました。建物や内装は“最初の方向性”で全てが決まると感じていたので、限られた時間の中で、その方向性を託せる相手を探していました。

02
質問

「その中で、なぜ私たちの設計事務所に依頼いただいたのでしょうか?」

回答

多くの話題の物件を見学し、気に入った物件の建築士の方々とも面談を重ねました。その過程で、その建築士の方からストリームさんをご紹介いただき、実績だけでなく考え方や姿勢に強く共感できたことが決め手になりました。初回の打合せで、こちらの背景や目標を丁寧に汲み取ってくださったのも大きかったです。

03
質問

「設計やデザインのプロセスで、印象に残っていることはありますか?」

回答

私たちの希望を細かく聞き取ったうえで、それを“増幅して洗練”させる提案に仕立ててくださった点がとても印象的でした。複数案の比較やメリット・デメリットの整理が明快で、判断がしやすかったです。図面やイメージだけでなく運用まで踏み込んだ説明があり、完成後の姿が具体的に想像できました。

04
質問

「費用面の心配はありましたか?進めてみていかがでしたか?」

回答

当初は不安がありましたが、費用の内訳を細かく可視化していただき、投資すべきところと節約できるところのメリハリを明確にしてもらえたのが良かったです。優先順位を一緒に整理することで無理のない計画に落とし込め、最終的なコスト感への納得度も高まりました。結果として、必要な価値にしっかり資源を配分できたと感じています。

05
質問

「実際に完成したクリニックをご覧になって、印象はいかがでしょうか。スタッフや患者様の反応はいかがでしょうか?」

回答

非常に好評です。複数の同業者が見学に来られ、「紹介してほしい」と言っていただける仕上がりになりました。患者様からは居心地の良さや安心感についての声が多く、スタッフからも動きやすさと気持ちの切り替えがしやすいと好評です。空間自体が、私たちの診療姿勢を自然に後押ししてくれていると感じます。

06
質問

「振り返って、もっと工夫できたと思う点はありますか?」

回答

診療動線について、こちらからの運用の細部をもう少し具体的にお伝えし、検討の密度を高めても良かったと感じています。収納や備品配置、ピーク時の動きの想定など、実務の“癖”まで共有できていれば、さらに完成度が上がったかもしれません。今後の改善ポイントとして前向きに捉えています。

07
質問

「日常の診療や運営の中で、この空間をつくって良かったと感じるのはどんな時ですか?」

回答

患者様の表情が和らいだ瞬間や、スタッフの動きが自然に噛み合ったときに、空間の力を実感します。特に働く私たち自身がその恩恵を受けており、毎日、場からの癒しと集中力をもらいながら仕事ができています。余計なストレスが減り、サービスの質にも良い循環が生まれていることに感謝しています。