RiCarna Clinic | STREAM.inc
RiCarna Clinic customer interview

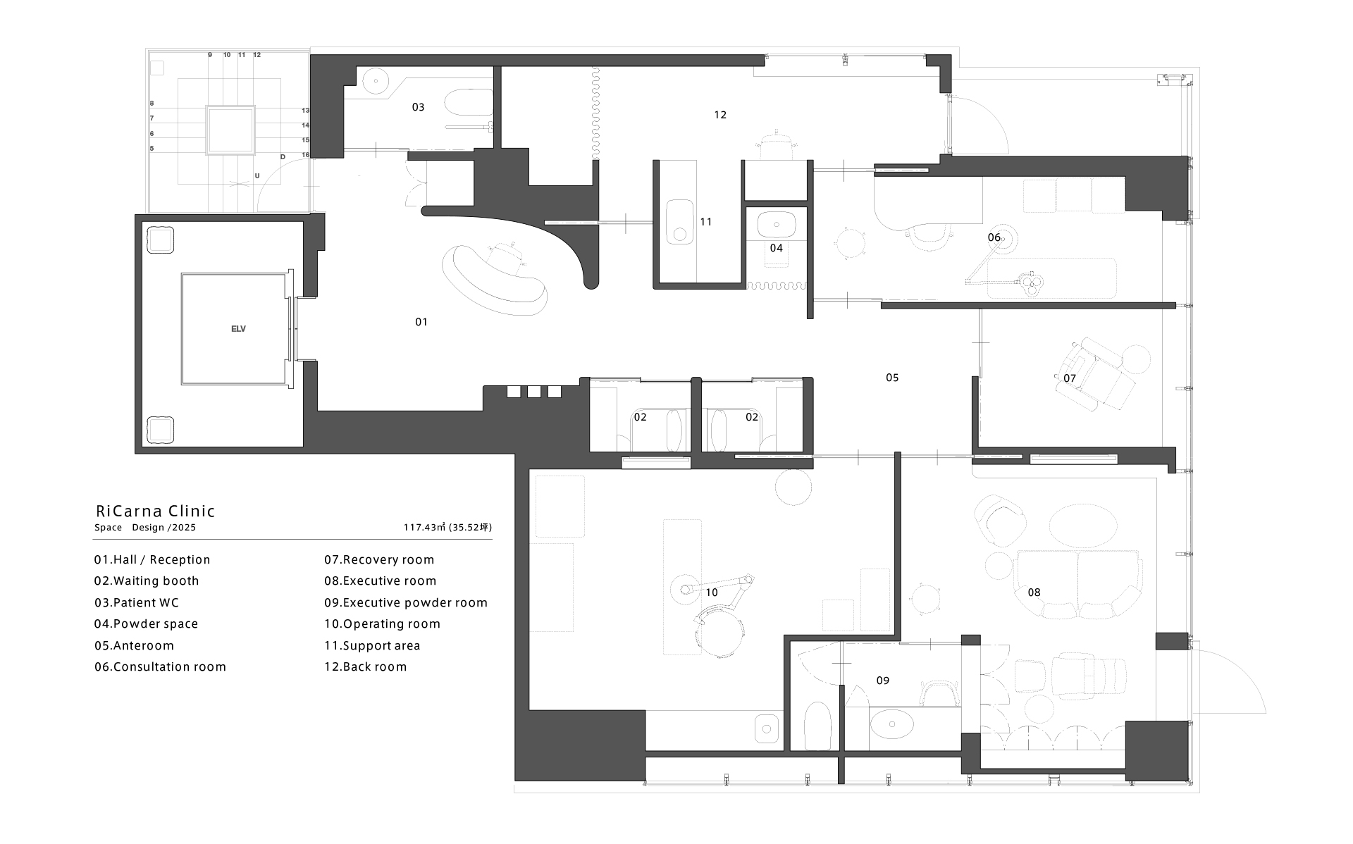
OnlyOneの医療体験をあなたに。

RiCarna Clinic

東京都中央区銀座5丁目6-7 SANWAすずらんビルディング 6階

https://www.ricarna.com
院長 菊池 守 様 最高医療技術責任者  田中 里佳 様

BEYOND CLINIC DESIGN

draw
01
質問

「まずは、クリニックを開院されるにあたって、どんな課題や不安を感じてい らっしゃいましたか?」

回答

自分の思い通りのデザインやイメージが伝わり、実際に診療を行う上での動線だったりとか、機能面とデザイン性の兼ね合いがちゃんとうまくいくかどうか。妥協したくなかったので、両方ともいい結果になるように、本当にちゃんと設計してもらえるか心配でした。

もともとの希望よりも見つかった物件の敷地面積が小さかったため、ラグジュアリー感を狭い空間で出すのは難しいだろうなと思ったので、とても不安でした。

02
質問

「その中で、なぜ私たちの設計事務所に依頼いただいたのでしょうか?」

回答

Pinterestで様々なクリニックの画像を見ていた時に、菊池先生とイメージがあって、素敵だなって思う設計が、STREAMさんの設計作品のものが多かったので、コネクションはなかったけど、いちかばちか問い合わせてみました。

03
質問

「設計やデザインのプロセスで、印象に残っていることはありますか?」

回答

やっぱり物を見せてもらえたっていうのはよかったです。漆喰や壁紙など実際の素材を手に取って見れ、丁寧にご説明いただいたことが大きかったです。
空間はCGパースだけでは雰囲気は伝わらないので、ハイエンドの空間をどうやって実現するのかを、わかりやすく説明してくれたことが助かりました。

04
質問

「費用面の心配はありましたか? 進めてみていかがでしたか?」

回答

もちろん心配でした。でも設計の方が自信をもって「こっちの方がいい」ということについては信じざるを得なかったけど、終わってみて信じて良かったと思ってます。

正直費用面は想定よりかかりましたが、完成品としてはとても満足のいくもでした。100点ではないですが90点ぐらいはあげましょう(笑

05
質問

「実際に完成したクリニックをご覧になって、最初の印象はいかがでしたか? また患者さんやスタッフさんの反応はいかがでしょうか?」

回答

設計で受付が大きい印象で、設計中には無駄なスペースかなと思っていました。

だけど出来上がってみたら、ホテルみたいな印象で、すごいバランスが良かったからさすがだなと思いました。プロの仕事だと思った。

実際に出来上がるとやはり高級感がありました。素材、実際の素材を見て、漆喰だったりとか、入り口の壁の石の感じとか、あれはもう想像してたよりも、やっぱりいいことになったから、それもさすがだなと思いました。

スタッフも同じ意見で、やっぱり動線も使いやすいし、高級感があるし、本当にイメージ通りのものになりました。やっぱ出来上がったらこれ本当さすがだなと思いました。

06
質問

「振り返って、もっと工夫できたと思う点はありますか?」

回答

すごくおしゃれな調光、おしゃれなライティングなんだけど、そこをもう少し施術する内容に合わせたライティングだったりとかとかライトの位置だったりっていうのはもう少しお互い検討が必要だったと思いました。

施術写真を撮ることを前提に、撮影場所におけるライティングだったりとかっていうのはもう少し工夫ができたかなと。

高齢者対象のクリニックっていうところを我々があんまり伝えられてなかったからか、ソファーが柔らかすぎて患者さんが立ち上がりずらい。でも若い患者さんにはちょうど良く,.,.,.。だからまあ高さは変えれないけどやりようはあるのかなと思う範囲での反省点です。

07
質問

「日常の診療や運営の中で、この空間をつくって良かったと感じるのは どんな時ですか?」

回答

いつも常に常に感じています。患者さんに褒められた時や、毎日この空間にいることが幸せ。
STREAM に頼んでよかったとすごく思ってますし、ほかの人にも紹介してくれって言われるけれど、同じようなハイクオリティなクリニックができると困るので紹介したくない。ごめんなさい(笑